3
1
2
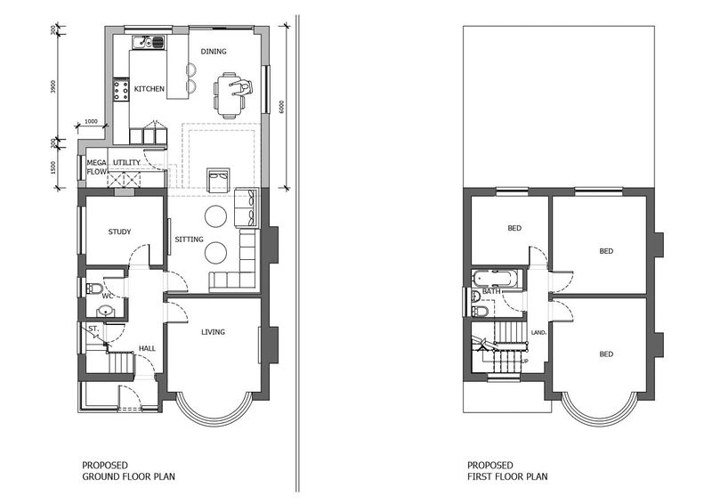
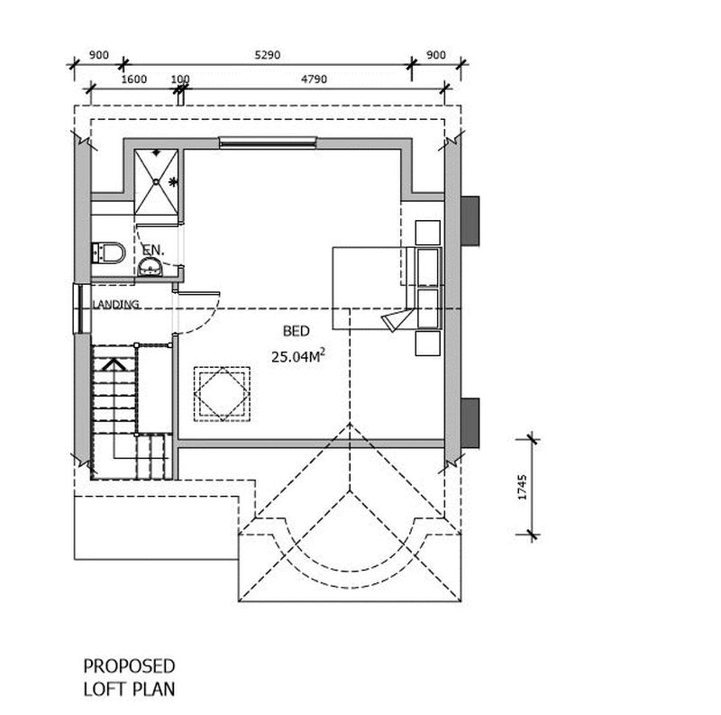
Crendon House are pleased to welcome to the market this detached character home, positioned in one of High Wycombe’s most sought-after private residential locations within Cressex and within walking distance of the town’s renowned grammar schools. The property previously held planning permission for a loft conversion creating a master double bedroom with en-suite, as well as a 6-metre rear extension (19/05811/FUL). Although the planning has now lapsed, the precedent provides a strong indication of the potential for future development, subject to obtaining new consent. This attractive family home also benefits from a rear garden extending to over 100ft, a garage, driveway parking, gas central heating and a downstairs WC. To fully appreciate the accommodation on offer and the scope for enhancement, we highly recommend arranging an accompanied viewing. NO CHAIN.
Rupert Avenue is a residential street on the southwest side of High Wycombe, close to Cressex and Booker. The area offers convenient access to local supermarkets, everyday shops and regular bus routes into the town centre. Several primary schools are nearby, and High Wycombe’s grammar schools are within walking distance. Junction 4 of the M40 is close by for straightforward road links, and nearby provides direct services to London.
Accessed via UPVC front with double glazing to front aspect.
Accessed via wooden front door with glass panelling, under stairs storage, radiator.
Obscured double glazed window to side aspect, fully tiled walls, low level WC, hand wash basin, tiled flooring.
11' 5'' x 11' 3'' (3.48m x 3.43m)
Double glazed bay fronted window to front aspect, radiator, fireplace.
12' 0'' x 11' 5'' (3.65m x 3.48m)
Doors leading to conservatory, radiator, fireplace.
9' 5'' x 8' 5'' (2.87m x 2.56m)
Double glazed window to side aspect, variety of eye and base level cabinets with contrasting work surfaces, tiled splash back, electric stove with oven below and extractor fan above, stainless steel sink, cupboard housing Vaillant combination boiler, radiator.
7' 10'' x 7' 9'' (2.39m x 2.36m)
Double glazed windows and doors to rear garden.
UPVC door to rear garden, space and plumbing for washing machine, space for tall fridge/freezer.
Obscured double glazed windows to side aspect, access to loft.
11' 5'' x 11' 5'' (3.48m x 3.48m)
Double glazed bay fronted window to front aspect, radiator, picture rails.
12' 0'' x 11' 5'' (3.65m x 3.48m)
Double glazed window to rear aspect, built in wardrobes, picture rails.
9' 5'' x 8' 4'' (2.87m x 2.54m)
Double glazed window to rear aspect, built in wardrobe, radiator.
Obscured double glazed window to side aspect, fully tiled walls, low level WC, hand wash basin with integrated storage, bath with shower attachment and mixer tap, heated towel rail, tiled flooring.
Up and over door with light and power.
Laid to lawn with mature hedging and trees, side access via tall wooden gate, access to garage.
Area laid to lawn with driveway parking, hedging and trees.
Please complete the form below to request a viewing for this property. We will review your request and respond to you as soon as possible. Please add any additional notes or comments that we will need to know about your request.
| Name | Location | Type | Distance |
|---|---|---|---|
Click to enlarge
High Wycombe: 01494 526313
Wooburn Green: 01628 527766