This beautifully presented three-bedroom home offers stylish, modern living in a highly convenient location, just a short distance from the village centre. Finished to an excellent standard throughout, the property benefits from a newly fitted kitchen and bathroom, a new central heating system and double glazing, making it an ideal move in ready home.
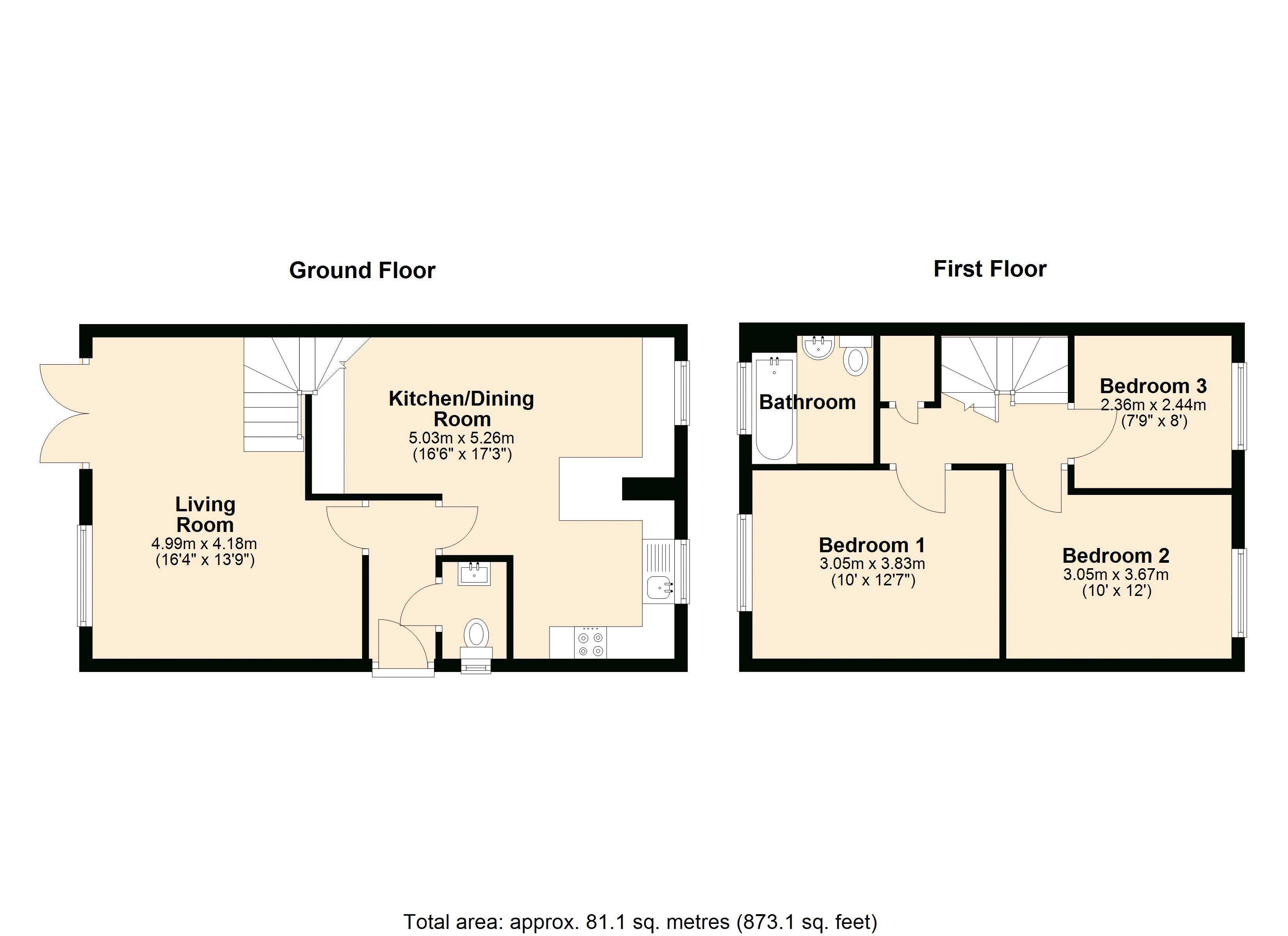
The ground floor comprises a welcoming entrance hall, a useful cloakroom and a stunning fully integrated kitchen/dining room, perfect for everyday living and entertaining. To the rear, the bright and spacious living room enjoys French doors opening directly onto the large, private and level rear garden, creating a seamless connection between indoor and outdoor spaces.
Upstairs, the property offers three well-proportioned bedrooms, all served by a contemporary family bathroom.
Externally, the generous rear garden provides an excellent space for families and entertaining, while the driveway to the front offers off-street parking for up to four vehicles. Conveniently positioned close to the village centre and local amenities, this superb home combines modern comfort with a practical layout in a sought-after setting.
3
1
1
This beautifully presented three-bedroom home offers stylish, modern living in a highly convenient location, just a short distance from the village centre. Finished to an excellent standard throughout, the property benefits from a newly fitted kitchen and bathroom, a new central heating system and double glazing, making it an ideal move in ready home.
The ground floor comprises a welcoming entrance hall, a useful cloakroom and a stunning fully integrated kitchen/dining room, perfect for everyday living and entertaining. To the rear, the bright and spacious living room enjoys French doors opening directly onto the large, private and level rear garden, creating a seamless connection between indoor and outdoor spaces.
Upstairs, the property offers three well-proportioned bedrooms, all served by a contemporary family bathroom.
Externally, the generous rear garden provides an excellent space for families and entertaining, while the driveway to the front offers off-street parking for up to four vehicles. Conveniently positioned close to the village centre and local amenities, this superb home combines modern comfort with a practical layout in a sought-after setting.
Tiled floor, radiator, dado rail, coving
Recently re-fitted with a close couple WC, wash hand basin vanity unit with mixer tap & storage cupboard underneath, part tiled walls, frosted double glazed window to side, tiled floor, coving, radiator
Re-fitted with a range of base & high level units with solid wood work surfaces, incorporating a built in oven & four ring gas hob with fitted extractor overhead. Integrated dishwasher, space for American style fridge/freezer, single sink with drainer & mixer tap, double glazed window to front aspect, tiled floor opens to
Further fitted kitchen works cupboards with wooden work surfaces, integrated washing machine, space for integrated tumble dryer or further appliance, tiled floor, radiator, double glazed window to front aspect
Engineered wooden flooring, radiator, double glazed window to rear aspect, double glazed French doors to rear garden, stairs rising to first floor, dado rail, coving, television point
Access to loft space, coving, large airing cupboard providing exceptional storage space
Double glazed window to rear aspect, engineered wooden flooring, radiator, television point
Engineered wooden flooring, radiator, double glazed window front aspect, coving
Engineered wooden flooring, radiator, double glazed window to front aspect, television point
Recently re-fitted with a three-piece white suite, panel enclosed bath with mixer tap & overhead raindrop showerhead with fitted glass splash screen & further handheld shower attachment, wash hand basin vanity unit with mixer tap & storage cupboards underneath, concealed cistern WC, tiled floor, partially tiled walls, heated towel rail, mirror fronted fitted vanity cupboard with further storage & courtesy LED lights
Large Flagstone patio area perfect for entertaining, large area of lawn, fully enclosed with panelled timber fencing, further Flagstone patio area at the rear of the garden and additional feature gravel bed, detached timber shed, gated side access
A large driveway to the front of the property, providing parking for at least three or four vehicles, enclosed by timber fencing, mature colourful tree
Please complete the form below to request a viewing for this property. We will review your request and respond to you as soon as possible. Please add any additional notes or comments that we will need to know about your request.
| Name | Location | Type | Distance |
|---|---|---|---|
Click to enlarge
High Wycombe: 01494 526313
Wooburn Green: 01628 527766