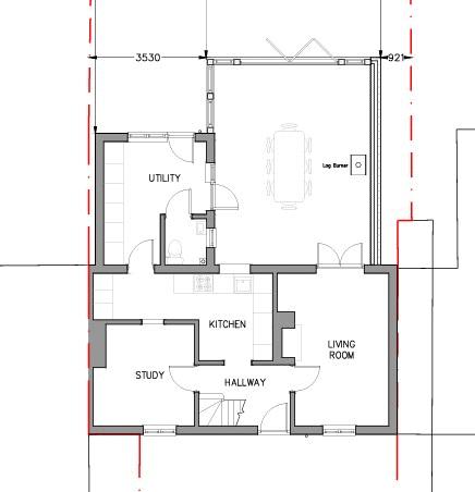
The ground floor provides generous and flexible living space, comprising an inviting entrance hall, study / bedroom four, well-appointed kitchen, a cosy sitting room featuring exposed beams and a wood-burning stove installed by the current vendors, conservatory come dining area, guest cloakroom and a spacious utility boot room with stable door to the garden.
Upstairs, there are three well-proportioned bedrooms and a stylish family bathroom fitted with both a shower cubicle and bath. The principal bedroom enjoys the added advantage of a walk-in wardrobe area, which offers potential to be converted into an en-suite shower room, subject to the necessary consents.
Presentation throughout is excellent, with modern kitchen and bathroom fittings and a number of recent upgrades completed by the current owners. These include a new front door, new garden fencing, a modern combi boiler installed in November 2020 with a 10-year guarantee, and fibre broadband already installed. In addition, planning permission and architectural plans for an extension were secured in early 2025, providing an exciting opportunity for future expansion and the open plan kitchen family accross the rear of the property with bifold doors to the west facing garden.
The home retains a wealth of original character features, creating a warm and inviting atmosphere. These include original wooden internal doors with black ironmongery and exposed timber ceiling beams, all complemented by modern enhancements such as double-glazed windows designed to remain in keeping with the property’s period character.
The rear garden, which can also be accessed via a shared side entrance, extends to over 100ft and is predominantly laid to lawn. A paved terrace at the rear of the house enjoys a desirable south-westerly aspect, ideal for outdoor entertaining. To the far end of the garden there is a raised planting area, hardstanding and a garden shed.
An internal inspection is highly recommended to fully appreciate the quality, style and versatility of the accommodation, along with the attractive outside space.
Location:
Malthouse Square is perfectly placed for the amenities of Beaconsfield Old Town, which offers a variety of popular bars, restaurants and boutique shops. Beaconsfield New Town is a short walk at just over a mile away and is home to the mainline railway station, providing fast and frequent services; The mainline Chiltern Rail train service from Beaconsfield can have you in Marylebone in as little as 23 minutes! A commuters delight with easy road links too to Junction 2 of the M40 just 1/2 mile away and the M25 within 6 minutes drive!
Schools in Beaconsfield are outstanding with private primary options of Davenies for boys and High March for girls, and very popular primary state schools Butlers Court and St Marys. For secondary age Beaconsfield High School for girls is within a short walk of the property as is The Beaconsfield Secondary School. Grammar schools for boys are in near by High Wycombe or Amersham with great bus links to all schools.
Further Information:
EPC Rating: D
Council Tax Band: E
N.B
We are required by law to conduct anti-money laundering checks on all those buying a property. Whilst we retain responsibility for ensuring checks and any ongoing monitoring are carried out correctly, the initial checks are carried out on our behalf by Lifetime Legal who will contact you once you have had an offer accepted on a property you wish to buy. The cost of these checks in £50(incl. VAT), which covers the cost of obtaining relevant data and any manual checks and monitoring which might be required. This fee will need to be paid by you in advance of issuing a memorandum of sale, directly to Lifetime legal, and is non-refundable. We will receive some of the fee taken by Lifetime Legal to compensate for its role in the provision of these checks.
3
1
3
A charming and characterful home, ideally positioned within the highly sought-after Old Town of Beaconsfield, offering beautifully presented accommodation arranged over two floors. The property is set around a delightful communal garden square and further benefits from its own driveway providing private off-street parking.
The ground floor provides generous and flexible living space, comprising an inviting entrance hall, study / bedroom four, well-appointed kitchen, a cosy sitting room featuring exposed beams and a wood-burning stove installed by the current vendors, conservatory come dining area, guest cloakroom and a spacious utility boot room with stable door to the garden.
Upstairs, there are three well-proportioned bedrooms and a stylish family bathroom fitted with both a shower cubicle and bath. The principal bedroom enjoys the added advantage of a walk-in wardrobe area, which offers potential to be converted into an en-suite shower room, subject to the necessary consents.
Presentation throughout is excellent, with modern kitchen and bathroom fittings and a number of recent upgrades completed by the current owners. These include a new front door, new garden fencing, a modern combi boiler installed in November 2020 with a 10-year guarantee, and fibre broadband already installed. In addition, planning permission and architectural plans for an extension were secured in early 2025, providing an exciting opportunity for future expansion and the open plan kitchen family accross the rear of the property with bifold doors to the west facing garden.
The home retains a wealth of original character features, creating a warm and inviting atmosphere. These include original wooden internal doors with black ironmongery and exposed timber ceiling beams, all complemented by modern enhancements such as double-glazed windows designed to remain in keeping with the property’s period character.
The rear garden, which can also be accessed via a shared side entrance, extends to over 100ft and is predominantly laid to lawn. A paved terrace at the rear of the house enjoys a desirable south-westerly aspect, ideal for outdoor entertaining. To the far end of the garden there is a raised planting area, hardstanding and a garden shed.
An internal inspection is highly recommended to fully appreciate the quality, style and versatility of the accommodation, along with the attractive outside space.
Location:
Malthouse Square is perfectly placed for the amenities of Beaconsfield Old Town, which offers a variety of popular bars, restaurants and boutique shops. Beaconsfield New Town is a short walk at just over a mile away and is home to the mainline railway station, providing fast and frequent services; The mainline Chiltern Rail train service from Beaconsfield can have you in Marylebone in as little as 23 minutes! A commuters delight with easy road links too to Junction 2 of the M40 just 1/2 mile away and the M25 within 6 minutes drive!
Schools in Beaconsfield are outstanding with private primary options of Davenies for boys and High March for girls, and very popular primary state schools Butlers Court and St Marys. For secondary age Beaconsfield High School for girls is within a short walk of the property as is The Beaconsfield Secondary School. Grammar schools for boys are in near by High Wycombe or Amersham with great bus links to all schools.
Further Information:
EPC Rating: D
Council Tax Band: E
N.B
We are required by law to conduct anti-money laundering checks on all those buying a property. Whilst we retain responsibility for ensuring checks and any ongoing monitoring are carried out correctly, the initial checks are carried out on our behalf by Lifetime Legal who will contact you once you have had an offer accepted on a property you wish to buy. The cost of these checks in £50(incl. VAT), which covers the cost of obtaining relevant data and any manual checks and monitoring which might be required. This fee will need to be paid by you in advance of issuing a memorandum of sale, directly to Lifetime legal, and is non-refundable. We will receive some of the fee taken by Lifetime Legal to compensate for its role in the provision of these checks.
Solid wooden flooring with stairs rising to first floor, radiator, fitted timber cabinets
Dual aspect with double glazed window to front & double glazed French doors to rear, solid oak wooden flooring, radiators, fireplace with solid woodburning stove & ornate brick hearth, exposed timber beams, television point
Cottage style and fitted with a range of base & eye level units with solid wooden work surfaces,, incorporating a belfast sink & mixer tap along with draining area. Space& point for oven with fitted extractor overhead, heated towel rail, stone tiled floor, space for tall American style fridge/freezer, serving hatch with beautiful timber mantle to conservatory, exposed timber beans.
Cast iron feature fireplace, serving hatch to kitchen, double glazed window front aspect, radiator, exposed beams
Dual aspect with double glazed windows to side & rear, tiled floor, exposed brickwork, vaulted ceiling, radiator
Stone tiled floor & fitted with a range of base and eye level units with wooden work surfaces, stable door to garden, double glazed window to rear aspect, heated towel rail, space & plumbing for dishwasher, space & plumbing for washing machine
Victorian style high-level WC, wash hand basin, tiled floor, double glazed window to side aspect
Double glazed window to front aspect, access to loft space
Double glazed window to rear overlooking the garden, brick built open fireplace, wash hand basin vanity with mixer tap water, wall to wall built-in wardrobes, secret door providing access to walk-in wardrobe which lends itself to conversion to ensuite
Double glazed window to rear aspect, built-in cupboard, radiator
Radiator, built-in cupboard, double glazed window to front overlooking the green & square
Modern & fitted with a four piece white suite comprising of close coupled WC, wash hand basin vanity unit with mixer tap & storage cupboard underneath, panel enclosed bath with mixer tap & handheld shower attachment, separate shower cubicle with folding splash screen, two double glazed windows to rear, heated towel rail, tiled floor
A west facing generous garden rectangular in shape, approx. 80 ft in length, secure & fully enclosed by timber panelled fencing, mainly laid to lawn with mature floral & herbaceous borders, large flagstone patio area, perfect for entertaining, secure side access, large detached timber shed
A large shingle driveway to the front of the property providing off-road parking for several vehicles
Please complete the form below to request a viewing for this property. We will review your request and respond to you as soon as possible. Please add any additional notes or comments that we will need to know about your request.
| Name | Location | Type | Distance |
|---|---|---|---|
Click to enlarge
High Wycombe: 01494 526313
Wooburn Green: 01628 527766