4
2
2
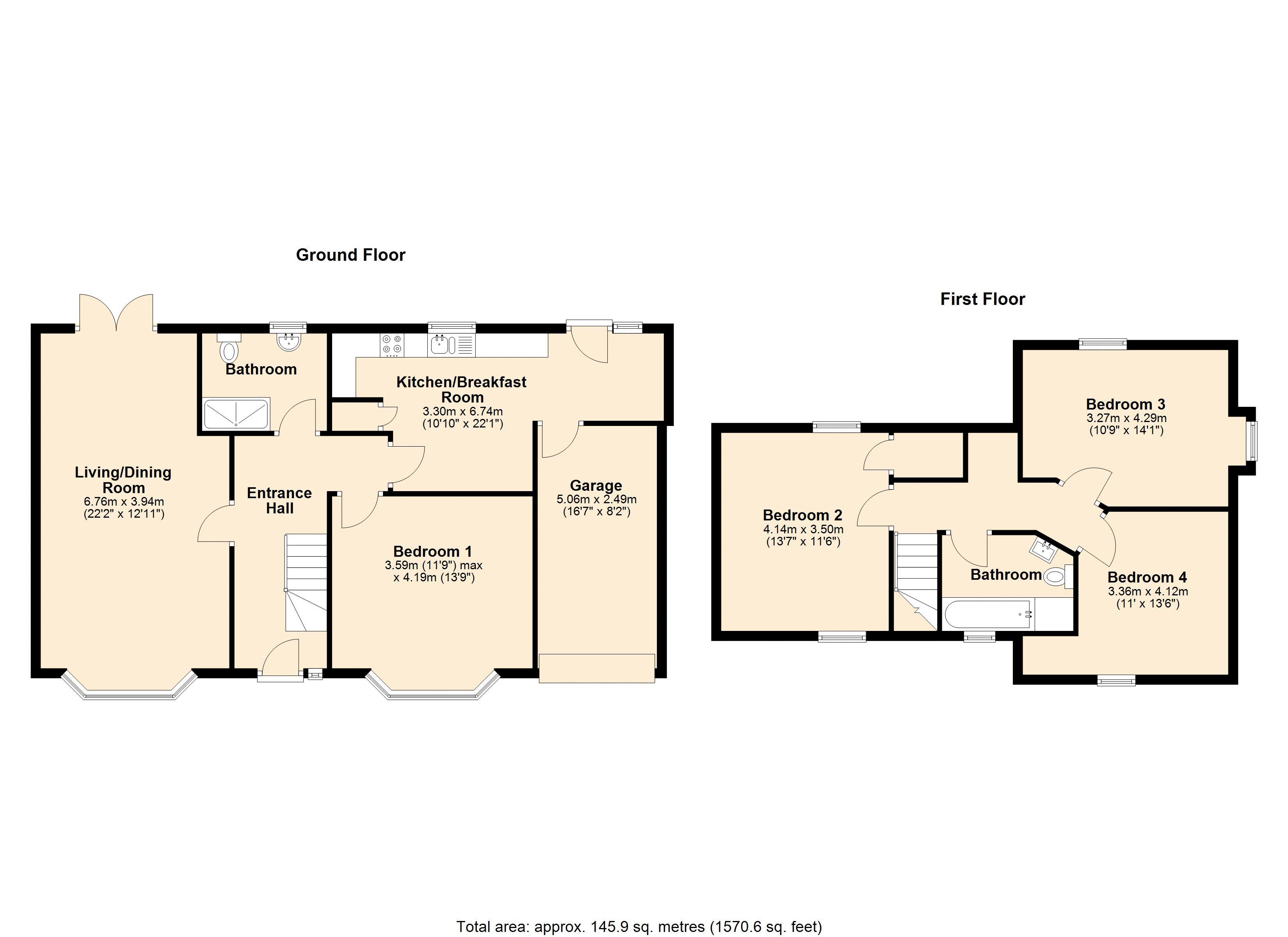
Wood effect flooring, radiator, stairs rising to first floor, thermostat controls, frosted double glazed window to front aspect
Double glazed bay window front aspect, double glazed French doors opening out to rear garden, radiators, picture rail, television point
Fitted with a range of base & eyelevel units with roll top wooden work surfaces, incorporating a one & a half bowl sink with drainer & mixer tap, built-in Bosch double oven & four ring AEG induction hob with fitted extractor overhead. Large ladder cupboard, space & plumbing for a dishwasher, space & plumbing for a washing machine, tiled floor, two double glazed window to rear & part glazed door providing further access to the rear garden. Fitted dresser unit with glass display cabinets, space for tall American style fridge/freezer, door providing internal access to the garage, breakfast area with large space for at least a six seater table
Double glazed bay window to front aspect, radiator, picture rail
Recently re-fitted with a white suite comprising of a close coupled WC, wash hand basin vanity unit with mixer tap & storage cupboards underneath, walk-in double shower cubicle with glass sliding splash door, handheld shower attachment & overhead raindrop showerhead, fully tiled walls & floor, frosted double glazed window to rear aspect
Frosted double glazed window to rear aspect
Dual aspect with double glazed windows to front & rear with for reaching views over the chimney pots & countryside, radiator, under eaves storage
Dual aspect with double glazed windows to rear & side, radiator
Dual aspect with double glaze windows to front & side, radiator, under eaves storage
Recently re-fitted with a white suite comprising pedestal wash hand basin, close coupled WC, panel enclosed bath with mixer tap and handheld shower attachment, part tiled walls, tiled floor, radiator, double glazed frosted window to front aspect
Perfect large space for family living, completely private & fully enclosed with timber fencing & secure gated access on both sides. Raised colourful floral & herbaceous borders with timber sleeper retainers. Large shingle area, perfect for entertaining, outside tap, large detached summer house with mains electricity with provisions for light & power
Integral to the property, fitted with a secure metal up & over door, light & power, wall mounted boiler, internal door providing access to the house
A large driveway at the front of the property providing secure off-road parking for several vehicles
Please complete the form below to request a viewing for this property. We will review your request and respond to you as soon as possible. Please add any additional notes or comments that we will need to know about your request.
| Name | Location | Type | Distance |
|---|---|---|---|
Click to enlarge
High Wycombe: 01494 526313
Wooburn Green: 01628 527766